行业干货

北京朝阳大悦城的楼层定位与品牌落位!

字号+ 作者:商之道 来源:商之道 2020-02-03 我要评论

楼层定位与品牌落位是商业地产项目的运作基础,是项目招商与运营管理的指导原则。

 

 
1F 欣赏
 
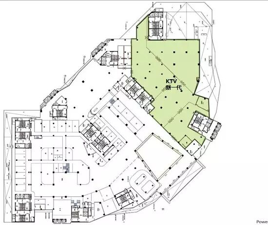
当没有大面积店作为主力店时,如何用重点品牌打造楼层特色
 
 
2-3F时尚
 
首层不一定是一楼
 
对快销品牌的认识
 
在窗口位置设置餐饮的重要性
 

 
4F自在
 
中性休闲品牌的认识
 
 
 
5F愿望
 
通过主题区来解决小面积客户的需求
 
 
6F 活力
 
 
7F笑声
 
学习与餐饮搭配的业态—书店,家居,SPA
 
 
8F 亲昵
 
 
9F新知
 
 
10F关爱
 
 
11F分享
 



声明:文章转载自网络,观点仅代表作者本人,平台仅作分享,版权归原作者。

转载请注明出处。

1.本站遵循行业规范,任何转载的稿件都会明确标注作者和来源;
2.作者投稿可能会经我们编辑修改或补充;
3.本站的原创文章,请转载时务必注明文章作者和来源,不尊重原创的行为我们将追究责任。
4.本站转载文章仅作行业分享,版权归原作者,如有侵权请联系(cccrea_service@shopmall.org.cn),我们会在第一时间删除;

相关文章
  • 万象城、大悦城等77个标杆购物中心租金/出租率

    万象城、大悦城等77个标杆购物中心租金/出租率

  • SKP-S “深度游”

    SKP-S “深度游”

  • 北京商业开始转向“首都”商业

    北京商业开始转向“首都”商业

  • 北京市出台引入商业品牌首店鼓励政策

    北京市出台引入商业品牌首店鼓励政策